Bản Vẽ Xây Dựng Nhà: Tại sao nó quan trọng?

Ngày xuất bản: 17/11/2024     Lượt xem: 308327
Bản Vẽ Xây Dựng Nhà: Tại sao nó quan trọng?

Bản Vẽ Xây Dựng Nhà: Tầm Quan Trọng và Các Yếu Tố Cần Lưu Ý

Giới Thiệu

Bản vẽ xây dựng nhà là một phần quan trọng trong quy trình thiết kế và thi công nhà ở. Nó không chỉ giúp các kỹ sư và nhà thầu hiểu rõ hơn về cấu trúc của ngôi nhà mà còn đảm bảo công trình hoàn thiện đúng theo yêu cầu. Trong bài viết này, chúng ta sẽ tìm hiểu chi tiết về bản vẽ xây dựng nhà và tại sao nó lại quan trọng đối với các dự án xây dựng.

Bản Vẽ Xây Dựng Nhà Là Gì?

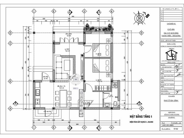
Bản vẽ xây dựng nhà là bản thiết kế chi tiết về kiến trúc, kết cấu, điện, nước và các yếu tố khác của ngôi nhà. Đây là tài liệu chính giúp các bên tham gia hiểu rõ và thực hiện đúng theo kế hoạch. Bản vẽ này bao gồm nhiều loại bản vẽ nhỏ khác nhau như:

  1. Bản vẽ mặt bằng: Thể hiện vị trí của các phòng, cửa ra vào, cửa sổ.
  2. Bản vẽ mặt cắt: Hiển thị chi tiết cắt ngang của ngôi nhà để rõ hơn về chiều cao và các tầng.
  3. Bản vẽ phối cảnh: Thể hiện hình ảnh tổng thể ngôi nhà sau khi hoàn thành.
  4. Bản vẽ kết cấu: Chi tiết cấu trúc như móng, cột, dầm và sàn.
  5. Bản vẽ hệ thống điện, nước: Thể hiện sơ đồ lắp đặt hệ thống điện, nước trong nhà.

Tại Sao Bản Vẽ Xây Dựng Nhà Quan Trọng?

1. Đảm bảo tính chính xác và an toàn

Bản vẽ giúp đảm bảo các yếu tố kiến trúc, kết cấu được tính toán kỹ lưỡng, tránh những lỗi sai trong quá trình thi công. Đây là bước then chốt để đảm bảo công trình bền vững và an toàn.

2. Tiết kiệm chi phí và thời gian

Nhờ có bản vẽ chi tiết, quá trình thi công sẽ diễn ra suôn sẻ hơn, hạn chế những sai sót không mong muốn, từ đó giúp tiết kiệm chi phí và rút ngắn thời gian xây dựng.

3. Đảm bảo tính thẩm mỹ và công năng

Mỗi ngôi nhà đều cần cân đối giữa tính thẩm mỹ và công năng sử dụng. Bản vẽ xây dựng sẽ giúp bạn hình dung trước về bố trí không gian, đồng thời tối ưu hóa công năng của các khu vực trong nhà.

4. Pháp lý và xin giấy phép

Bản vẽ là tài liệu quan trọng khi xin phép xây dựng từ các cơ quan chức năng. Nó là cơ sở để các cơ quan xét duyệt và cấp phép cho dự án xây dựng.

Các Lưu Ý Khi Làm Bản Vẽ Xây Dựng Nhà

1. Chọn đơn vị thiết kế uy tín

Một đơn vị thiết kế uy tín sẽ cung cấp bản vẽ đạt chuẩn và đảm bảo công trình của bạn được thực hiện đúng kế hoạch.

2. Lắng nghe ý kiến từ kiến trúc sư

Kiến trúc sư sẽ giúp bạn tư vấn về xu hướng thiết kế, đồng thời giải quyết các vấn đề kỹ thuật phát sinh trong quá trình vẽ.

3. Đảm bảo yếu tố phong thủy

Ngoài các yếu tố kỹ thuật, bạn nên cân nhắc đến phong thủy để ngôi nhà mang lại tài lộc và may mắn cho gia đình.

4. Cân nhắc về chi phí thi công

Mỗi chi tiết trong bản vẽ đều có thể ảnh hưởng đến chi phí xây dựng, do đó, cần dự trù và lập kế hoạch tài chính phù hợp.

bản vẽ xây dựng nhà ở tại chợ gạch

Kết Luận

Bản vẽ xây dựng nhà không chỉ là công cụ để hiện thực hóa ý tưởng về ngôi nhà mơ ước mà còn là nền tảng giúp công trình diễn ra an toàn, chính xác và hiệu quả. Để có được một bản vẽ tốt, hãy chọn một đơn vị thiết kế uy tín, lắng nghe tư vấn từ kiến trúc sư, và đảm bảo mọi yếu tố từ kỹ thuật đến phong thủy đều được xem xét cẩn thận.

Quay lại
Tác giả: Admin